KANTOOR
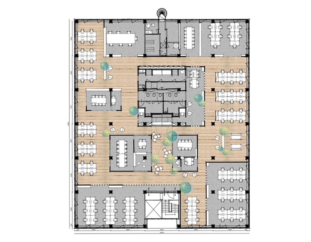
In opdracht van en in samenwerking met Reverinterieurprojecten hebben we bijgedragen aan de ontwikkeling van een kantoorconcept van een grote retailer.
Voor dit project hebben we de schetsen en plattegronden ontwikkeld.
Status: Het project is niet gerealiseerd



